13.jpg
05BLACK.jpg
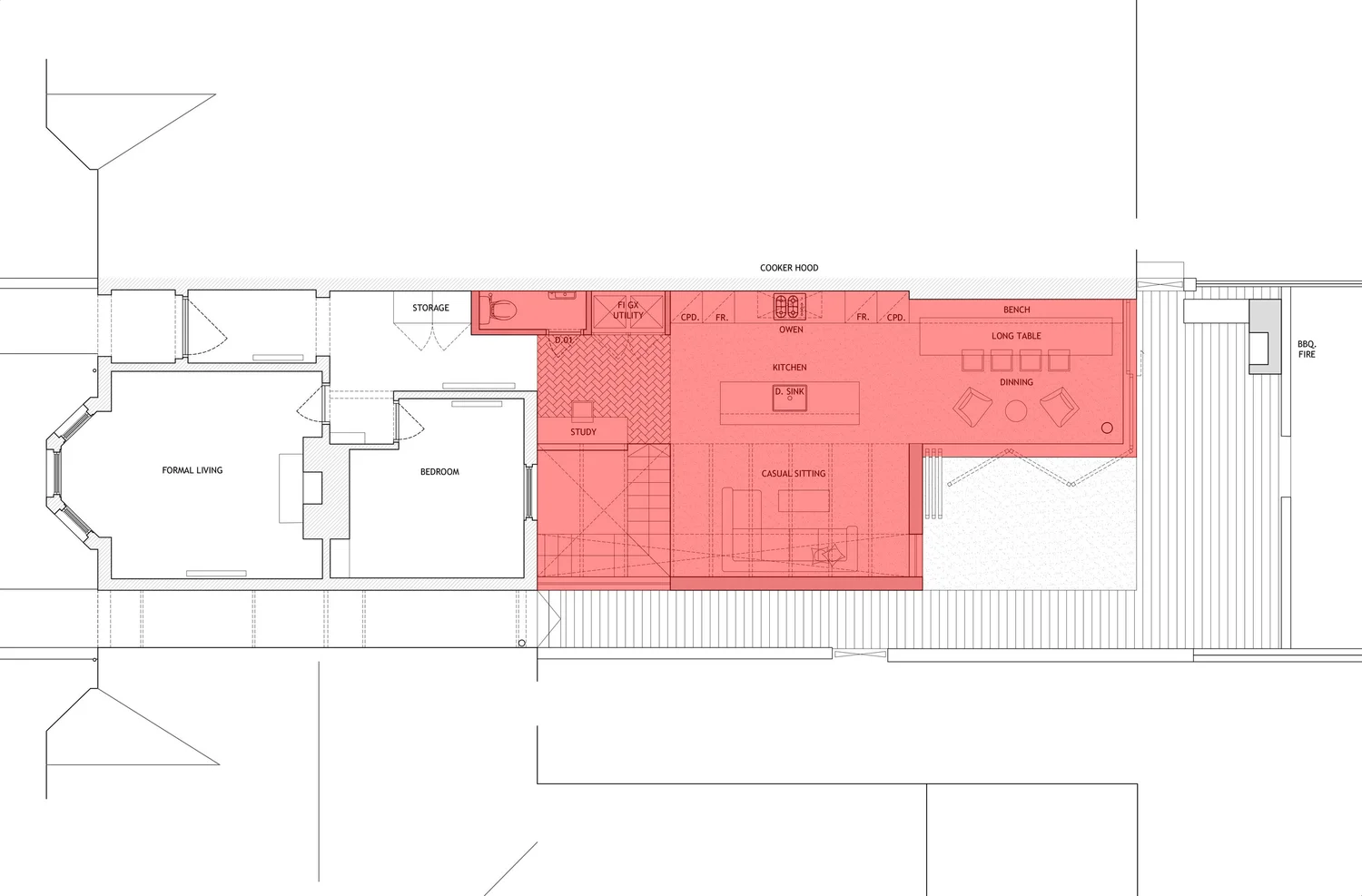
GROUND PLAN.jpg
01.jpg
02.jpg
12.jpg
pr04.jpg
pr05.jpg
REAR ELEVATION.jpg
SIDE ELEVATION.jpg
prev / next